一、产品简介
HTB-Ⅲ耐腐蚀工程塑料泵,属单级单吸悬臂式离心泵。过流部件一般采用钢衬超高分子量聚乙烯(UHMWPE)。该材质是目前国际上新一代的泵用耐腐耐磨工程塑料,其突出的优点是在所有的塑料中它具有优异的耐磨性、耐冲击性(尤其是耐低温冲击). 抗蠕变性(耐环境应力开裂)和非常好的耐腐蚀性。使用范围非常广泛。该泵结构紧凑、轴封严密,安装维修方便,使用可靠。
二、性能简述
密封:非标机械密封或动力密封。
适用介质:浓度75%以下硫酸,50%以下硝酸,各种浓度的盐酸,液碱,不含固体颗粒、不会快速凝固的介质。
主要技术参数:使用温度-20℃~90℃(对特殊要求、使用其它材质,可提高到120℃), 进口直径 32mm~100mm, 流量5~100m3/h,扬程50m以内。
三、使用范围
磷复肥工业、硫酸工业、环保污水、工业废水处理等的稀酸、盐酸、稀硝酸的循环输送。
四、型号说明
.png)
.png)
叶轮材质代号
|
|
超高分子聚乙烯 | 改性橡塑 | 氟合金 | 聚偏二氟乙烯 | 氯化聚醚 | 不锈钢 |
碳化硅 |
||
| 耐腐耐磨 | 耐温耐磨 | 耐腐 | |||||||
| 代号 | S | S1 | S3 | S2 | S4 | S5 | S6 | G |
C |
| 备注 | U型泵不标注 | ||||||||
泵体材质代号
|
|
超高分子聚乙烯 | 改性橡塑 | 氟合金 | 聚偏二氟乙烯 | 氯化聚醚 | 不锈钢 |
碳化硅 |
||
| 耐腐耐磨 | 耐温耐磨 | 耐腐 | |||||||
| 代号 | U | U1 | U3 | U 2 | U 4 | U 5 | U 6 | G |
C |
| 备注 | |||||||||
五、结构型式

六、详细参数
|
参数 \ 型号 |
叶轮规格 | 额定转速2900转/分 | 额定转速1450转/分 | 汽蚀 余量 (m) |
重量 (kg) |
||||||
| 流量Q (m3/h) |
扬程H (m) |
电机功率N 介质比重1.0 (Kw) |
效率η % |
流量Q (m3/h) |
扬程H (m) |
电机功率N 介质比重 1.0 (Kw) |
效率η % |
||||
| HTB3.2/20 | 标准 | 8 | 22 | 2.2 | 45 | 4 | 5.5 | 1.1 | 40 | 4 | 60 |
| 12.5 | 20 | 6.25 | 5 | ||||||||
| 16 | 15 | 8 | 3 | ||||||||
| HTB5.0/32 | 标准 | 20 | 33 | 5.5 | 51.5 | 10 | 8.2 | 1.5 | 45 | 5 | 110 |
| 25 | 32 | 12 | 8 | ||||||||
| 30 | 30 | 15 | 7.5 | ||||||||
| HTB10.0/32-168 | 标准 | 50 | 34 | 15 | 45 | 25 | 8.3 | 3 | 40 | 6 | 230 |
| 60 | 32 | 30 | 8 | ||||||||
| 70 | 30 | 35 | 7 | ||||||||
| HTB10.0/50 | 标准 | 70 | 52 | 30 | 61.5 | 35 | 13 | 5.5 | 56 | 5.5 | 230 |
| 80 | 50 | 40 | 12.5 | ||||||||
| 90 | 48 | 45 | 12 | ||||||||
| HTB10.0/40 | 标准 | 90 | 43 | 30 | 60 | 45 | 10.5 | 5.5 | 55 | 5.7 | 250 |
| 100 | 40 | 50 | 10 | ||||||||
| 110 | 38 | 55 | 9 | ||||||||
| HTB10.0/15-M | 标准 | 35 | 15.5 | 5.5 | 57 | 3 | 230 | ||||
| 40 | 15 | ||||||||||
| 45 | 14 | ||||||||||
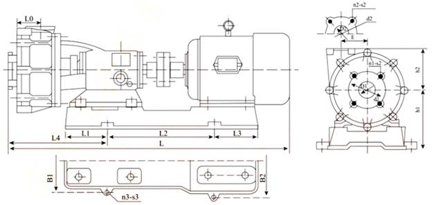
七、泵外形及安装尺寸

八、安装外型尺寸表
|
型 号 |
功率 (kW) |
配带 电机 |
安 装 外 形 尺 寸 |
|||||||||||||||||
|
D1 |
D2 |
d1 |
d2 |
B1 |
B2 |
n1-s1 |
n2-s2 |
n3- s3 |
E |
h1 |
h2 |
L0 |
L1 |
L2 |
L3 |
L4 |
L |
|||
|
HTB3.2/20 |
2.2 |
Y90L-2 |
32 |
25 |
100 |
85 |
260 |
260 |
4-M10 |
4-M10 |
4-φ18 |
81 |
160 |
110 |
110 |
97 |
336 |
97 |
308 |
804 |
|
HTB5.0/32 |
5.5 |
Y132S1-2 |
50 |
40 |
125 |
110 |
320 |
320 |
4-M12 |
4-M12 |
4-φ20 |
98 |
212 |
150 |
110 |
160 |
400 |
160 |
370 |
1042 |
|
HTB10.0/50 |
30 |
Y200L1-2 |
100 |
80 |
210 |
185 |
385 |
480 |
4-φ18 |
4-φ18 |
4-φ20 |
140 |
335 |
200 |
142 |
188 |
665 |
207 |
380 |
1398 |
|
HTB10.0/15-M |
5.5 |
Y132S-4 |
100 |
80 |
210 |
185 |
385 |
385 |
4-φ18 |
4-φ18 |
4-φ20 |
140 |
335 |
200 |
142 |
180 |
504 |
180 |
380 |
1106 |
|
HTB10.0/32-168 |
15 |
Y160M2-2 |
100 |
80 |
210 |
185 |
385 |
385 |
4-φ18 |
4-φ18 |
4-φ20 |
140 |
335 |
200 |
142 |
180 |
534 |
206 |
380 |
1236 |
|
HTB10.0/40 |
30 |
Y200L1-2 |
100 |
80 |
210 |
185 |
385 |
480 |
8-φ18 |
4-φ18 |
4-φ20 |
136 |
335 |
200 |
165 |
188 |
665 |
207 |
405 |
1423 |